说到公寓的户型,我们心目中的最佳户型莫过于南北通透、户型方正。可惜在大温地区找到同时符合这两个条件的公寓实属不易。但有这样一个楼盘,地段位于温西8号街,而且楼盘内20套单位每一套都是南北通透的方正户型。
楼盘概况
楼盘名称:1555 West Eighth
楼盘地址:1555 W 8TH AVE
所在城市:温哥华 / 温西
楼盘建商:Kenstone Properties
建筑设计:Mcfarlane Biggar
楼盘类型:8层 / 20套
奢华,新定义
“一幢公寓内的所有单位都是大平层户型怎么样?”1555 West 8th的概念由这样一个想法而诞生。每一套户型都将自然采光及景观视野极致化。由OMB建筑设计师事务所精心设计的独特造型,造就了外观与功能的完美结合。
▲1555 West 8th建筑外观
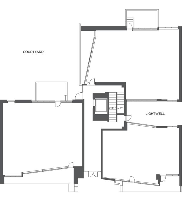
为了最大程度保障住户的隐私,1555 West 8th特意花费双倍建筑成本,独特打造出无共用墙体的设计。每一层只有2-3户的独特设计通过优化的窗户方位和景观视角为室内提供充足的采光。▲1555 West 8th楼层平面图
与此同时,1555 West 8th建筑环绕着禅式花园和光井,让自然光线流入走廊及电梯等候区,带来静谧的景致开启每天的极致生活。
▲1555 West 8th位置图
1555 West 8th位于温西South Granville社区,这里以聚集城市精英闻名。艺术画廊、时尚家具店、工作室、顶级面包店、咖啡馆、餐馆等汇聚一堂。两个街区外就是Graville和Broadway街交叉口。2分钟车程可达Granville大桥,由此可前往温哥华市中心。1555 West 8th提供了无比便利的交通和闹中取静的居所。
▲1555 West 8th部分户型景观
细节,见真章
精心设计而成的1555 West 8th为每一户业主打造顶级的生活体验,提供绝佳的舒适度,渗透到每一个优质而低调的细节,传达奢华高雅的感受。
左◁ 专程定制的建筑面板以精确角度折射出光线,在阳光下创造出闪闪放光似珠宝盒般的迷人效果。
右▷ 实心橡木大门尺寸宽于普通公寓,搬运大型家具无需担心。纯手工打造Bocci门灯装点出家的温馨。
精致厨房由Friul Intagli打造定制橱柜,配有包括意大利Bertazzoni36寸六眼铸铜燃气灶、30寸烤箱,Fhiaba36寸冰箱,Bosch24寸洗碗机及AEG抽油烟机。
入口处即有大型储藏间。客厅巨大双层玻璃落地窗为住户提供大量采光和景致。为沙发边落地灯预留地板插座。
左◁ 比利时品牌Jaga高效冷暖系统,设有4个温控区域可单独进行不同温度调节,以提供最舒适的居住感受。
右▷ 洗衣机和烘干机摒弃传统公寓上下叠置的摆放方式,采用独立屋的并排摆放方式。同时配有挂杆、折衣台面和存储空间,使得衣物清洁也有独立完整空间来完成。
浴室配有地暖,并由意大利Friul Intagli打造定制橱柜。超大无缝玻璃淋浴间提供畅快感受。


