

1
壹
前段时间,由协平世博Concord Pacific打造的Yaletown地标性高端公寓The ARC举行了竣工仪式,万众期待的悬空玻璃底泳池首次亮相,随即刷爆了朋友圈。




今天优利专栏【户型赏析】就为您带来全新交付的The ARC世博壹2房2卫1书房全新公寓现房。
2
贰

The ARC
2房2卫1书房
$1,100,000
地址
89 Nelson Street, Vancouver
交通
距离Yaletown天车站及Stadium-Chinatown天车站约10分钟步行
年代
2019年
面积
868 平方英尺 ≈ 80.6平方米
朝向
西南
楼层
5/29
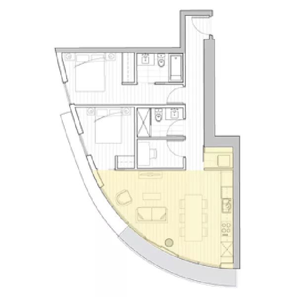
该公寓户型实用面积为868平方英尺(约80.6平方米)。带有2间卧室,2个全套卫生间,1个车位和1个locker。The ARC是由加拿大的社区开发商协平世博Concord Pacific在温市中心打造的高端住宅项目,建筑外形以旗帜飘扬的优美线条作为灵感,是北美首个空中泳池的公寓项目。

进门后不会像大部分公寓一样对室内布局一览无遗,二是需要先经过一条画廊式走道,颇有些曲径通幽,行至客厅后豁然开朗的意味。画廊式走道可充分利用其大面积墙面悬挂喜爱的艺术作品,凸显业主的出众品位;或将其打造成为一面照片墙,记录展示生活中的美好点滴。

▲画廊式走道装饰参考 | 图源:网络
沿着走廊向内会经过主卧和次卧,将休息区与生活区进行了隔离,保证了睡眠不易受到打扰。两间卧室均为西向,由于单位内已装有中央空调,夏天西晒导致的室内温度较高可通过空调轻松调节,无需担忧夏季炎热。冬日的西向房间则更为温暖舒适。

The ARC卧室内及玄关的衣柜采用精美的木质纹理,衣橱还内设照明装置,打开柜门,柜内灯光就会亮起。该套单位内两间卧室居住面积可观,可至少容纳Queen Size床垫和双床头柜。作为多种功能使用的小书房在户型中心位置,方便平时使用。


浴室采用大理石墙面和地砖,使用全套科勒高仪Kohler和Grohe卫浴洁具。石英石台面的洗手池台面搭配木质图案的洗手池柜,风格现代,相得益彰。主卧配套卫生间配备浴缸,次卧为淋浴间。浴室梳妆镜柜下方还安装底部照明。


广告



洗衣间内洗衣机与烘干机上下叠放,并部分空间可用以收纳如吸尘器、拖把等清洁用品。
该套单位内的开放式一字型厨房配备德国美诺Miele家电组合,包括30寸的冰箱、4眼明火天然气灶台、烤箱和微波炉。纹理流畅的木纹质感橱柜内还安装了厨具、餐具的收纳隔板和不锈钢收纳支架;人造石英石台面和大理石防溅背板既美观,又便于清洁。
没有在厨房内设置岛台的设计,为餐桌预留出了空间,使得该块与客厅连通的区域也更为宽敞,可供业主发挥的空间更大。


▲ Flex Wall让空间灵活变化
客厅为西南向,采光充足。阳台门采用了可灵活拓展的Flex Wall移动墙,让室内外生活空间无缝连接,在居家娱乐时更加宽敞舒适。无论在烹饪、就餐或休息时都能欣赏城市的繁华景观。

3
叁

The ARC位于温哥华市中心Yaletown社区中心,这个水岸社区由开发商Concord Pacific一手打造,完美呈现自然与人合一的温哥华主义生活,充分享受自由自在,亲近自然的奢华。



透明空中泳池是The ARC的业主会所空中俱乐部Skyclub的一部分。Skyclub以奢华典雅的姿态横空出世,雄踞20层楼高空的傲然地位,舍弃了价值不菲的建筑空间,只为让住户们在放松身心享受星级设施之际,得已登高远眺无限美景。除此之外,The ARC的每一个停车位安装电动车充电桩,并为业主提供全自动洗车房。



星级设施清单
✦全天候专业礼宾服务
天海宴会厅
✦富丽堂皇的休闲厅,
配有可筹办宴席活动的厨房
✦户外休闲平台
云景水疗馆
✦玻璃底恒温泳池
✦桑拿房
✦芳香疗法蒸气浴室
✦水疗池
✦体验式淋浴
✦罗马式温泉水疗
(带有石头座椅的加热室)
蓝天健身房
✦配备最先进的健身器材
二楼
✦卡布奇诺休闲吧&花园
停车场
✦自动无触洗车房
✦所有车位配备充电桩
✦清洗及工作坊

The ARC所在的Yaletown是温哥华著名的美食聚集地,各类特色餐厅、咖啡馆、小酒馆等等人气兴旺。Urban Fare精品超市、T&T大统华超市等均在5分钟车程范围内,本地有机蔬果、火腿奶酪、新鲜海鲜、面包熟食等等应有尽有。

广告


挂牌概要
|
名称 |
The ARC 世博壹 |
|
地址 |
89 Nelson Street, Vancouver |
|
户型 |
2房2卫1书房 |
|
开价 |
$1,100,000 |
|
开发商 |
协平世博集团 Concord Pacific |
|
推荐理由 |
1. 位于温哥华市中心Yaletown,景色秀丽的福溪水岸地段,周边配套成熟,生活极为便利; 2. 大牌开发商打造,具有品牌价值; 3. 所在小区为地标性建筑,业主会所设施高端,并带有首座空中泳池。 |
|
交通贴士 |
距离Yaletown天车站及Stadium-Chinatown天车站约10分钟步行 |
![]() 优先购买 位于温哥华市中心最新交付地标性高端公寓The ARC,全新2房2卫1书房单位售价$110万,即刻扫码添加优利超级客服,了解更多详情,预约实地参观。 |
|

优利原创文章;转载或广告内容合作请联系优利微信客服 (wechat: youliveca);违规转载法律必究。
免责声明:资料由开发商提供,一切信息以最终发售为准。文章仅供参考,不作为投资建议。
感谢阅读 精彩继续
近期热点

你问我答 | $60万预算有希望在本拿比
入手两房公寓吗?有哪些选择?
优利你好,我想在本拿比入手一间两房公寓,预算在$60-$65万之间,希望尽可能房龄新一点,面积最好能在800呎以上,有什么选择? 点击阅读>>

起价仅$60万即可入住
1,500呎大户型联排别墅,
15分钟即达全省首家Nordstrom Rack
近些年,大温中心城区较高的房屋价格和相对较小的户型选择,使得很多房屋购买者和投资者把目光转向了位于大温东部的素里、兰里、枫树岭等市区。本期优利小编就为您介绍位于兰里的全新联排别墅项目Fraser。 点击阅读>>
点击“阅读原文”直达【优利搜房】



