1
壹
作为大温华人比例最高的城市,列治文素来是华人移民居住的热门城市。这里交通便利,有Canada Line天车线直接往返于温哥华市中心和列治文市中心。这里生活便利,众多的美食广场和中式餐饮为大温及周边地区提供了丰富的选择。这里自然环境优美,著名的渔人码头是多部电影的取景地,还有刚打捞上岸的新鲜海鲜可以购买。这里还有着包括奥运速滑馆、列治文社区中心、水上运动中心等多个健身场所。
今天优利专栏【户型赏析】为您带来位于列治文中心地段,3号路沿线Quintet君庭豪城D座的2房2卫公寓户型。
2
贰
Quintet Tower D
2房2卫1车位
$680,000
地址
605-7788 Ackroyd Road,
Richmond
交通
距Lansdowne天车站仅600米
年代
2015
实用面积
835 平方英尺
朝向
西
楼层
6/18
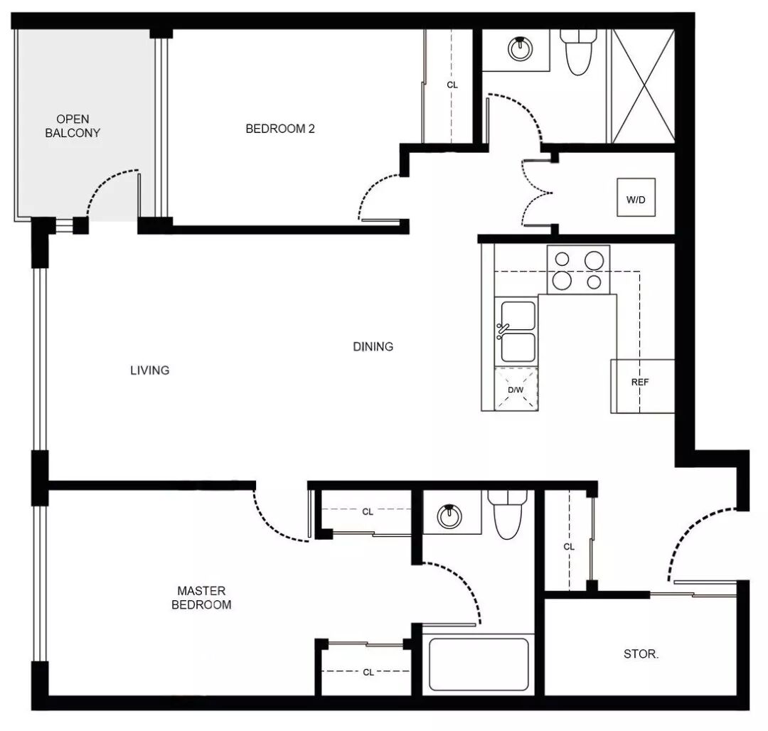
该套公寓户型室内面积为835平方英尺(约78平方米),为2卧2卫户型,并带有1个车位,朝向为西向。室内主要房间装有空调,可独立调节,舒适度夏。
▲ Quintet小区
该套单位位于Quintet君庭豪城的D座,坐落于整个小区的西北角,Ackroyd Road和Minoru Blvd交叉口,不紧邻繁忙的3号路,无需担心天车或车流带来的噪音。既可以享受周边完善配套带来的便利生活,室内又颇为安静。
该套单位整体户型方正,入口玄关配有收纳外套的衣橱,并有足够空间摆放鞋柜。入口一侧即为带有推拉门的储藏室,可以方便有效收纳各类型生活必需品。
厨房为经典U型,有充足收纳空间,采用节能之星厨房家电,包括Blomberg 28英寸冰箱、Bosch 30英寸嵌入式烤箱、天然气灶台、洗碗机、微波炉等。
岛台配有大型不锈钢单盆水槽和带下拉式喷头的科勒水龙头,便于清洗各类物品。厨房橱柜内预置转角收纳架,不会浪费任何空间。岛台配有分隔架,可用于收纳红酒。
客厅餐厅与厨房相连,形成客餐厅一体化,且均面积客观,十分方正。便于摆放家具,有宽敞的生活空间。大片落地窗可引入充足采光。并可通往阳台。
该套户型最大的特点为两间卧室分列两侧,保证隐私,互不干扰。次卧距卫生间很近,无需绕路,配置几乎与主卧相当。衣橱为推拉镜面移门,方便实用,无需自行再购买大型穿衣镜。大型落地窗外为阳台,采光充足。
套内洗衣间位于次卧门口的过道处,采用Bosch上下叠放式洗衣机和烘干机。同时能提供部分收纳空间。
卧室均采用羊毛混纺地毯,脚感舒适温暖。主卧内衣橱分列两侧,可单独收纳男女主人衣物。主卧卫生间配有浸入式浴缸,墙面贴有瓷砖。
广告
3
叁
Quintet项目又名君庭豪城,是由著名开发商Ledcor集团在列治文中心地段开发的集公寓、联排别墅和商业一体的大型综合性社区。该项目共有5栋住宅建筑,拥有超过2英亩景观绿化空间,平衡城市生活体验。
业主设施包括24小时物业服务、室内游泳池、桑拿室、配置瑜伽区的健身房、公共空间、儿童娱乐区和屋顶花园等配套设施。小区内还建设有人造景观瀑布和池塘,美化生活居住环境。
君庭豪城比邻占地33,000平方英尺的列治文社区中心,其中包括多功能表演厅、艺术工作室、多媒体室、老年及幼儿休息室等提供多种活动,满足日常活动需求。
君庭豪城周边配套成熟完备,距离Lansdowne天车站仅600米,步行数分钟可达。Lansdowne购物中心包括大统华超市旗舰店、Best Buy、ICBC、邮局、各色餐馆等汇聚于此,信步可达。
由君庭豪城前往列治文市中心的CF Richmond Centre购物中心仅需4分钟步行。超过200家品牌专柜、餐饮店铺和服务机构在此,每天上午10点到晚上9点(除周日)提供便利的购物体验。
广告
挂牌概要
|
名称 |
Quintet 君庭豪城 |
|
地址 |
605-7788 Ackroyd Road, Richmond |
|
户型 |
2房2卫公寓 |
|
面积 |
835 平方英尺 |
|
朝向 |
西 |
|
年代 |
2015 |
|
物业费 |
$364/月 |
|
开价 |
$680,000 |
|
开发商 |
Ledcor Group Canada |
|
推荐理由 |
1. 位于列治文黄金地段四年新次新房,户型方正开阔,两个卧室分列两端,互不干扰; 2. 周边配套极为成熟,距Richmond Centre购物中心仅350米,步行数分钟可达天车站、大统华超市旗舰店、多个美食广场; 3. 小区业主会所设施齐全,景观花园、游泳池、游乐场、健身房一应俱全。; 4. 开价低于政府估价,平均每尺单价仅$800出头。 |
|
交通贴士 |
距Lansdowne天车站仅600米 |
|
优先购买 列治文黄金地段,大型小区君庭豪城2房2卫次新房带车位现已上盘,即刻扫码添加优利超级客服,预约实地看房! |
|
优利原创文章;转载或广告内容合作请联系优利微信客服 (wechat: youliveca);违规转载法律必究。
免责声明:资料由开发商提供,一切信息以最终发售为准。文章仅供参考,不作为投资建议。
感谢阅读 精彩继续
近期热点
即刻入住环境得天独厚的北温联排,
部分户型还带独立套间
本期优利为您介绍由大型开发商Anthem打造,位于北温Moodyville社区的全新联排现房项目Founders Block North。 点击阅读>>
独家 | 销量破百多点开花,
上月温东社区独立屋成交排行榜揭秘
上月温哥华东区独立屋售出了108套。最受欢迎的社区在哪里?独立屋成交均价是多少?这些都是大家关心的话题。优利小编特别整理【优利大数据·温东独立屋社区成交排行榜】,为您的投资置业出谋划策。 点击阅读>>
点击“阅读原文”直达【优利搜房】


