
1
壹
在疫情影响下,独立屋凭借宽敞的居住空间已经成为目前最受欢迎的房屋类型。在大温地区当中,位于本拿比的Government Road社区有着优越的自然环境,便利的交通,完备的公共交通系统,同时该社区的独立屋土地面积开阔,通常都在8000平方英尺以上。

本拿比湖 | 图源:网络
今天优利专栏【户型赏析】为您带来的是本拿比Government Road社区土地面积超过一万平方尺的3房3卫独立屋。
2
贰

北本拿比
Government Road社区
独立屋
3卧3卫
$1,799,000
地址
3325 Cardinal Drive,
Burnaby
年代
1971
房屋面积
2438 平方尺 ≈ 226 平方米
土地面积
10080 平方尺 ≈ 936 平方米
本套独立屋位于北本拿比Rovernment Road社区,房屋建于1971年,房龄为49年,南北朝向。
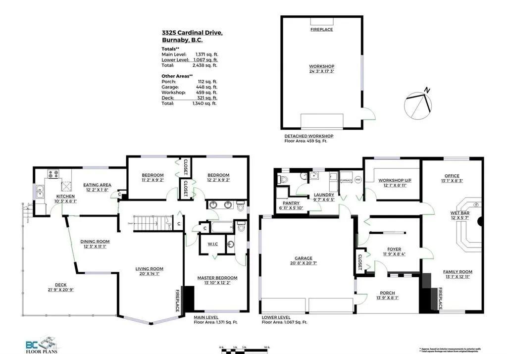
该套房屋为两层结构,共带有3个卧室3个卫生间,并带有一间独立工作坊。居住面积为2438平方英尺,约合226平方米。土地面积10080平方英尺,约合936平方米。


本套独立屋所在土地入口为90英尺(约27米)深度为112英尺(约34米),为南北朝向,面积开阔。土地方正且平缓,无缺角、路冲等硬伤。

该套房屋始建于1971年,为两层结构,上层带有厨房、餐厅、客厅及3个卧室;下层带有车库、家庭厅、吧台、书房、洗衣房、食品储藏室等。


上层面积为1371平方英尺(约127平方米),为主要生活区域。南向客厅带有两扇宽大落地窗,为室内引入充足采光。客厅顶部带有木质横梁和吊扇,搭配天花板木条装饰,在视觉上对室内空间有了进一步延伸。客厅内带有壁炉,提供温馨的家庭氛围。
正餐厅与客厅相连,两面带窗,通透明亮。可摆放长条式餐桌,招待亲友完全不局促。


厨房为经典U字形,厨房家电一应俱全,通顶吊柜不用担心柜顶积灰难以清洁,同时提供收空间。水池正对厨房窗户,提供采光。早餐厅与厨房相连,可看到后院景观,可摆放圆形餐桌并靠墙摆放餐具展示柜。

通过厨房可通往面积宽敞露台,可放置户外烧烤炉、户外家居套组等。露台带有楼梯通往后院,可尽情享受户外休闲生活。




三个卧室均位于上层,其中主卧南向,带有走入式衣橱。两间客卧为带有衣橱,小巧温馨。主要卫生间内带有双水池设计,可供两人同时使用,并带有浴缸。


下层面积为1067平方英尺(约99平方米)。并排双车位车库除了停放车辆外同时提供四季运动用品收纳。大门口带有门廊,可放置快递包裹不被风吹雨淋。玄关开阔,大门左手侧配有衣橱,靠楼梯墙面可放置穿鞋椅或玄关架。


玄关右手侧为开放式的家庭厅,可供全家休闲娱乐及居家办公使用。家庭厅内配有壁炉,中心为为一个环绕型吧台。
另有一间书房位于该层,可作为独立办公室使用。洗衣房内清洁衣物也不会打扰到楼上家人休息。食物储藏间提供充足的收纳空间。



位于后院的独立工作坊与房屋本身错开,不会互相遮挡。配有壁炉,冬天也可供暖。如果兴趣爱好有较为大型设备或产生一定噪音,这里都可以作为绝佳场所。

后院面积开阔宽敞,地势平缓,可根据自身需求种植各类花草,摆放蹦床、充气水池、滑梯等儿童玩具空间绰绰有余。
3
叁

本套独立屋位于北本拿比Government Road社区,毗邻风景秀美的本拿比湖和Charles Rummel Park,所在地段没有电线杆和悬于空中的电线阻挡视野。屋顶为近期新装,并更新了高效暖气设备,上一年地税为$5507.22。

毗邻的Charles Rummel Park为周边居民提供了儿童游乐区、儿童喷泉、社区手作中心、棒球场等设施,同时该公园与Lozells Trail步道相连,可在林间散步,并有三文鱼栖息保护区的Eagle Creek贯穿而过,自然环境十分优越。

居住于此出行十分方便,前往Sperling-Burnaby Lake天车站仅1.3公里。自驾车出行8分钟车程可达Brentwood购物中心、SFU大学、Costco超市,12分钟车程可达Metrotown购物中心。可快速接入Lougheed Hwy,通往温哥华市中心和大温地区其他城市。

对应学区
学校名称
最新市排名
最新省排名
小学
Seaforth
3/33
181/955
中学
Burnaby Mountain
4/8
98/252

广告


挂牌概要
|
地址 |
Charles Rummel Park, Burnaby |
|
户型 |
3卧3卫独立屋 |
|
室内面积 |
2438平方英尺 |
|
土地面积 |
10080平方英尺 |
|
开价 |
$1,799,000 |
|
年代 |
1971 |
|
推荐理由 |
1. 位于北本拿比静谧社区,毗邻本拿比湖和Charles Rummel公园,自然环境优越; 2. 所在地段地处内街,环境安静,对应公立学校优秀; 3. 房屋南北朝向,采光充足,后院带有独立工作坊,所在土地面积开阔; 4. 室内屋况维持良好,可直接入住,想要内部翻新也有较大发挥空间。 |
|
交通贴士 |
距离Sperling-Burnaby Lake天车站约1.3公里。 |
![]() 优先购买 位于本拿比市Government Road社区3卧3卫独立屋已经上盘,即刻扫码添加优利超级客服,了解更多信息! ![]() |
|

优利原创文章;转载或广告内容合作请联系优利微信客服 (wechat: youliveca);违规转载法律必究。
免责声明:资料由开发商提供,一切信息以最终发售为准,文章仅供参考。
感谢阅读 精彩继续
近期热点

联排楼花 | Southlands
三角洲Boundary Beach社区

1房公寓 | Jameson House
温哥华Downtown社区
点击“阅读原文”直达【优利搜房】




