
1
壹
被认为家庭首选居住地的温西众多社区当中,除了名声响亮有着市政大力规划的Cambie走廊之外,与之相邻的Granville大街两侧亦新建了不少住宅,且类型以联排别墅为主,更适合对居住空间有较高要求的家庭。

今天优利小编为您介绍位于温西South Granville社区的全新联排项目Modus。

广告

Metrotown纯住宅高层公寓

2
贰

Modus项目位于温西South Granville社区,Granville Street与Park Drive交界处,周边生活机能成熟便利,自然环境优美。

项目紧邻Granville大街,距Safeway超市仅900米,步行可达。Granville大街周边遍布各类餐饮店铺,包括叹茶、王记牛肉面、鸿星海鲜酒家等中式美食及寿司、披萨、星巴克等快餐门店。

Modus项目所在区域交通便利,自驾车出行前往YVR国际机场仅需4分钟车程,前往温哥华市中心仅需10分钟车程。前往Marine Drive商圈及天车站仅需5分钟车程,由此可快速接入Canada Line天车线路往返于温哥华及列治文之间,或前往包括T&T大统华、Cineplex电影院、Winners商场等在内的各项生活设施。

由于地处温西,周边公园绿地众多,包括Fraser River Park、Riverview Park、Shannon Park、Oak Park等公园,McCleery、Marine Drive、Langara等高尔夫球场。由此前往VanDusen植物园、伊丽莎白女王公园仅需5分钟车程。

Modus项目对应的小学为David Lloyd George,步行10分钟可达;对应的中学为提供IB课程的Sir Winston Churchill,相距3分钟车程距离。周边早教中心、蒙特梭利学校等教育资源丰富。前往温西众多知名私立学校也十分便利。
3
叁

Modus项目由Cornerstone建筑事务所以西海岸为灵感打造现代外观,共提供17套2-4卧室联排,室内面积从971-1584平方英尺不等。


Modus项目主层生活空间层高9尺,铺以工程橡木地板。采用开放式户型设计,引入充足采光。双层中空玻璃提供高效节能、隔绝噪音功能。室内带有冷暖气系统,提供四季舒适。楼梯以透明玻璃作为扶手墙,使得室内更为通透。

每套单位内厨房均配有大尺寸岛台,为备餐及轻食提供场所,并配有不锈钢台下双水池。橱柜及岛台台面及防溅背板采用石英石材质。不锈钢厨用家电套组包括意大利品牌Fulgor Milano天然气明火灶台、嵌入式烤箱、冰箱,24寸超静音Bloomberg洗碗机等。

Modus项目上层休息区通铺地毯,洗衣间与储藏室相连,可用以收纳日常生活用品。大多数单位主卧带有露台,尽享清净户外时光。

Modus项目大多数单位在主层设有半卫,便于起居生活使用。主卧套间浴室设有地热,冬日也可赤足踏入。大部分套间浴室带有双洗手池设计,可供双人使用。

Modus项目每套单位均带有底层露台,并配有天然气及水管接口,可放置户外烧烤炉。顶层均带有阳台,在家也可享户外休闲时光。所有三房单位带有两个地下停车位。所有车位内均带有充电桩接口。
4
肆

小区平面图

户型A:3卧+2.5卫
室内面积:1418平方英尺
室外面积:197-219平方英尺

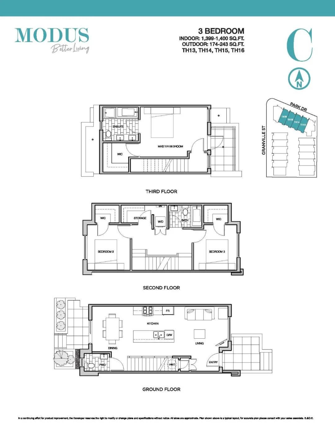
户型C:3卧+2.5卫
室内面积:1400平方英尺
室外面积:174-243平方英尺

户型F:2卧+2.5卫+Den
室内面积:1258平方英尺
室外面积:366平方英尺



项目概要
|
名称 |
Modus |
|
地址 |
1488 Park Drive Vancouver |
|
开发商 |
Centred Developments |
|
户型 |
17套2-4房联排别墅 |
|
室内面积 |
971-1584平方英尺 |
|
推荐理由 |
1. 位于温西黄金地段,周边社区机能成熟,交通便利; 2. 周边教育资源丰富,对应学区优秀; 3. 提供2-4房户型,适合不同家庭需求。 |
|
交通贴士 |
前往温哥华市中心约10分钟车程。 |
![]() 优先购买 位于温西South Granville社区的全新联排别墅Modus项目现正销售中。即刻扫码添加优利超级客服,了解更多优惠详情,预约参观。 ![]() |
|

优利原创文章;转载或广告内容合作请联系优利微信客服 (wechat: youliveca);违规转载法律必究。
免责声明:资料由开发商/卖家提供,一切信息以最终发售为准。文章仅供参考,不作为投资建议。
感谢阅读 精彩继续
近期热点

全小区最低价!
世界级建筑大师经典作品,
3分钟步行即享Coal Harbour水岸美景

每尺单价低至$600+,
入住高尔夫球场旁联排别墅,
天车站及众多亚洲美食步行即达
点击“阅读原文”直达【优利搜房】





