温哥华市区总价仅$40+万,紧邻城市绿洲及天车站,2年新南向1房单位 | 户型赏析

温哥华市区总价仅$40+万,紧邻城市绿洲及天车站,2年新南向1房单位 | 户型赏析
温哥华市区总价仅$40+万,紧邻城市绿洲及天车站,2年新南向1房单位 | 户型赏析
温哥华市区总价仅$40+万,紧邻城市绿洲及天车站,2年新南向1房单位 | 户型赏析


1


位于温哥华与本拿比两市的交界处,有一座占地达86.4公顷的中央公园Central Park,为周边居民提供了天然的休闲场所。


温哥华市区总价仅$40+万,紧邻城市绿洲及天车站,2年新南向1房单位 | 户型赏析


今天优利专栏【户型赏析】为您带来位于紧邻中央公园,2年新高层南向一房公寓。


2


温哥华市区总价仅$40+万,紧邻城市绿洲及天车站,2年新南向1房单位 | 户型赏析

Wall Centre Central Park Tower 3

111车位

$499,000

地址

1210-5470 Ormidale St.

Vancouver

交通

距Joyce-Collingwood天车站约700米

面积

534 平方尺 ≈ 50 平方米

朝向

年代

2018


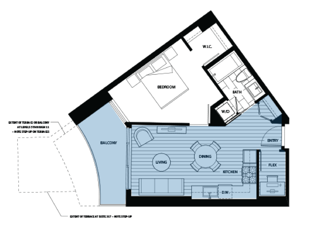
本套单位为温哥华市Collingwood社区Wall Centre Central Park 1卧1卫正南朝向高层单位,室内面积为534平方英尺(约50平方米),带有1个地下车位,于2018年交付,房龄仅2年。

温哥华市区总价仅$40+万,紧邻城市绿洲及天车站,2年新南向1房单位 | 户型赏析


温哥华市区总价仅$40+万,紧邻城市绿洲及天车站,2年新南向1房单位 | 户型赏析


该套单位内部选用深色色调,室内通铺地板,易于清洁与维护。大门右手侧为一个双开门衣橱,可用以收纳外套鞋包等。左手侧为一个flex,可作为小型书房或储物间使用。


温哥华市区总价仅$40+万,紧邻城市绿洲及天车站,2年新南向1房单位 | 户型赏析


厨房为经典L型,双侧吊柜及橱柜提供充足收纳空间。一体嵌入式冰箱及洗碗机隐藏于橱柜中,整体利落和谐。橱柜台面采用石英石材质,坚固易洁。天然气灶台、微波炉、烤箱等厨房家电一应俱全。


温哥华市区总价仅$40+万,紧邻城市绿洲及天车站,2年新南向1房单位 | 户型赏析
温哥华市区总价仅$40+万,紧邻城市绿洲及天车站,2年新南向1房单位 | 户型赏析


餐厅、客厅、厨房相连,空间开阔,包括沙发、餐桌等家具套组可灵活摆放。客厅与阳台相连,超大尺寸玻璃窗为室内引入大量采光。


温哥华市区总价仅$40+万,紧邻城市绿洲及天车站,2年新南向1房单位 | 户型赏析


温哥华市区总价仅$40+万,紧邻城市绿洲及天车站,2年新南向1房单位 | 户型赏析
温哥华市区总价仅$40+万,紧邻城市绿洲及天车站,2年新南向1房单位 | 户型赏析
温哥华市区总价仅$40+万,紧邻城市绿洲及天车站,2年新南向1房单位 | 户型赏析


卧室带有南向窗户,采光充足。面积可观,可容纳双人床及床头柜,并可靠墙摆放五斗柜等额外橱柜家具。卧室内带有一间走入式衣帽间,内置悬挂横杆,为衣物收纳提供充足空间。


温哥华市区总价仅$40+万,紧邻城市绿洲及天车站,2年新南向1房单位 | 户型赏析
温哥华市区总价仅$40+万,紧邻城市绿洲及天车站,2年新南向1房单位 | 户型赏析


浴室内带有浴缸可提供淋浴与浸浴两种体验。大尺寸镜面药品柜可用以收纳各类保养品。洗手池带有大理石台面,定制橱柜为洗浴用品及生活用品提供收纳空间。


温哥华市区总价仅$40+万,紧邻城市绿洲及天车站,2年新南向1房单位 | 户型赏析


3


温哥华市区总价仅$40+万,紧邻城市绿洲及天车站,2年新南向1房单位 | 户型赏析
温哥华市区总价仅$40+万,紧邻城市绿洲及天车站,2年新南向1房单位 | 户型赏析


本套单位位于Wall Centre Central Park小区的Tower 3,由知名大型开发商Wall Financial于2018年打造,所在地段生活极为便利,带1个车位,每月的物业费为$243.64。


温哥华市区总价仅$40+万,紧邻城市绿洲及天车站,2年新南向1房单位 | 户型赏析
温哥华市区总价仅$40+万,紧邻城市绿洲及天车站,2年新南向1房单位 | 户型赏析
温哥华市区总价仅$40+万,紧邻城市绿洲及天车站,2年新南向1房单位 | 户型赏析
温哥华市区总价仅$40+万,紧邻城市绿洲及天车站,2年新南向1房单位 | 户型赏析


Wall Center Central Park小区由屡获殊荣的GBL建筑事务所打造,业主会所设施齐全,包括60尺长泳道泳池及热水池、双层挑高健身房、户外花园、会议室、小区农场等。


温哥华市区总价仅$40+万,紧邻城市绿洲及天车站,2年新南向1房单位 | 户型赏析
温哥华市区总价仅$40+万,紧邻城市绿洲及天车站,2年新南向1房单位 | 户型赏析


Wall Center Central Park小区位于温哥华与本拿比交界处,紧邻占地86.4公顷的本拿比城市绿洲Central Park。这里拥有多条健身步道、儿童游乐场、网球场、棒球场、自行车道、泳池等设施。


温哥华市区总价仅$40+万,紧邻城市绿洲及天车站,2年新南向1房单位 | 户型赏析


Wall Center Central Park小区周边生活机能完备成熟,距大型购物中心Metropolis at Metrotown及Crystall Mall丽晶广场仅5分钟车程,百余家品牌专柜、超市、餐饮、银行、影院等设施一应俱全。小区距Joyce-Collingwood天车站仅5分钟步行距离,通勤出行均十分便利。


温哥华市区总价仅$40+万,紧邻城市绿洲及天车站,2年新南向1房单位 | 户型赏析


温哥华市区总价仅$40+万,紧邻城市绿洲及天车站,2年新南向1房单位 | 户型赏析
温哥华市区总价仅$40+万,紧邻城市绿洲及天车站,2年新南向1房单位 | 户型赏析
温哥华市区总价仅$40+万,紧邻城市绿洲及天车站,2年新南向1房单位 | 户型赏析


挂牌概要

温哥华市区总价仅$40+万,紧邻城市绿洲及天车站,2年新南向1房单位 | 户型赏析

项目

Wall Centre

Central Park Tower 3

地址

1210-5470 Ormidale St.

Vancouver

户型

1卧1卫+Flex公寓

开价

$499,000

开发商  

Wall Financial

年份

2018

物业费

$243.64

车位

1

推荐理由

1. 位于温哥华本拿比交界处,紧邻Central Park,自然环境优越;

2. 仅2年新正南朝向高层一房公寓,总价低可负担性强,自住投资皆宜

3. 小区内业主会所设施齐备,包括60尺长泳池、健身房、户外花园、会议室等

交通贴士

距Joyce-Collingwood天车站仅700米

温哥华市区总价仅$40+万,紧邻城市绿洲及天车站,2年新南向1房单位 | 户型赏析


优先购买


位于温哥华与本拿比边界,由大型开发商打造2年新高层1房+flex单位现已上盘,即刻扫码添加优利超级客服,了解更多信息!


温哥华市区总价仅$40+万,紧邻城市绿洲及天车站,2年新南向1房单位 | 户型赏析


温哥华市区总价仅$40+万,紧邻城市绿洲及天车站,2年新南向1房单位 | 户型赏析


优利原创文章;转载或广告内容合作请联系优利微信客服 (wechat: youliveca);违规转载法律必究。


免责声明:资料由开发商提供,一切信息以最终发售为准,文章仅供参考。


感谢阅读 精彩继续 


近期热点

温哥华市区总价仅$40+万,紧邻城市绿洲及天车站,2年新南向1房单位 | 户型赏析

温哥华市区总价仅$40+万,紧邻城市绿洲及天车站,2年新南向1房单位 | 户型赏析

起价低至$50+万,

入住紧邻高尔夫球场大型联排小区,

还有双拼户型可选

温哥华市区总价仅$40+万,紧邻城市绿洲及天车站,2年新南向1房单位 | 户型赏析

温哥华排名第一优质学区,

自带罕见楼顶露台,

温西最热门社区4房5卫全新独立屋


点击“阅读原文”直达【优利搜房】

No Comments Yet.

Leave a comment

You must be Logged in to post a comment.