
1
壹
由于疫情爆发的缘故,不少人的生活范围缩小在自己家中,生活空间的大小从未像如今这样重要。试想如果能有超过2000平方英尺的居住面积,有书房提供居家办公场所,有娱乐厅打造家庭影院,有后院提供户外景观,生活体验将大幅提升。

今天优利专栏【户型赏析】为您带来位于素里Panoroama Ridge社区Eastridge项目最后一套双拼联排。

广告

Metrotown纯住宅高层公寓

2
贰
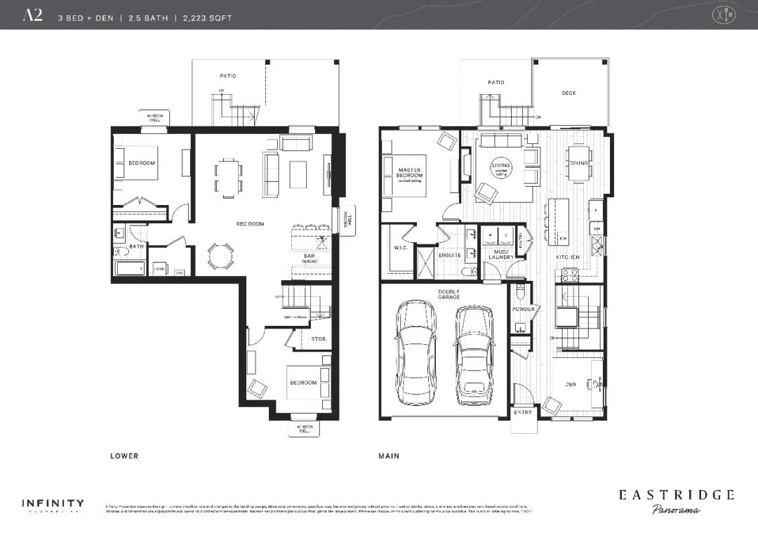
户型信息
3卧+Den+2.5卫+Rec
居住面积
2223 平方英尺 ≈ 207 平方米
该套联排单位室内居住面积为2223平方英尺(约207平方米),为3卧2.5卫+Den+Rec户型,东西朝向,价格$915,000。


Eastridge项目室内设计开阔明亮,户型方正,层高9-12尺。主层拥有完整生活机能,包括临窗书房、厨房、客厅、餐厅、半卫、主卧套间、洗衣间、车库等均位于该层。

建筑外观黑白分明、现代简洁,外墙与车库门以线条勾勒质感。车库门与大门位于同一侧,双车位并排车库层高8尺,可存放四季户外运动用品。车库通往洗衣间兼Mud Rood,在此可更换外衣及鞋具,瓷砖地面易于清洁,换下的衣物可直接放置于洗衣间脏衣篓或洗衣机内,卫生便捷。

若步行回家从大门出入,玄关靠墙可放置穿鞋凳挂衣杆套组,并设有外套衣橱可供收纳。玄关右侧为方正书房,享超高挑高,为居家办公提供明亮通透环境。


开放式厨房、餐厅与客厅相连通,打造开阔生活空间,并享后院景观。厨房采用Whirlpool不锈钢家电套组,包括法式双开门冰箱、五眼天然气燃气灶、节能之星洗碗机、Panasonic松下嵌入式微波炉等。安装有带缓冲开关橱柜,抛光石英石台面和瓷砖后挡板完美搭配,以及不锈钢洗碗池。


厨房同时提供嵌入式食品柜、垃圾粉碎机、转角收纳架、升级KitchenAid家电套组等多个选装选项。

广告

温哥华西区女皇公园旁轻奢公寓



客厅享超高挑高,配有天然气壁炉提供温暖家庭氛围。竖条纹特色墙及天花板在视觉上延伸,打造出更开阔的空间感。大型窗户引入充足采光,客厅可摆放对坐沙发套组,提供舒适温馨生活体验。

宽敞的前廊后院设有室外天然气接口,便于接入烧烤炉,天气晴好时可与亲友聚会聊天,共享美景。


主卧套间位于主层生活空间,带有拱形挑高天花板和一个宽敞的步入式衣帽间,提供充足整理和收纳空间。
主卧套间浴室内安装有抛光石英石台面和后挡板,并配以磨砂质感的黑色哑光配件,格调优雅。宽敞的步入式无框玻璃淋浴间带来水疗般舒适体验。双洗手池设计方便两人同时使用。并可选装地热。



底层带有两间客卧和一个家庭娱乐室,可选装吧台,并容纳包括台球桌、大型沙发套组、影音设备等休闲娱乐设施。


两间客卧方正宽敞,分可容纳双人床及双床头柜。两间卧室可共享一个带有浸入式浴缸的卫生间,生活便利、功能实用。


3
叁


Eastridge项目共提供36套3卧双拼/三拼联排别墅,该套单位为双拼联排户型,位于小区东面。每月物业费预计为$306.79。
Eastridge项目位于素里Panorama Ridge社区,紧邻10号高速公路,靠近King George Blvd,交通便利。仅需13分钟车程,就可以抵达白石镇的新月海滩Crescent Beach。15分钟左右可至美加边境,或转上99、91和15号高速公路,畅行整个低陆平原。
Eastridge Panorama项目紧邻社区内人气商圈Panorama Village及Sullivan Square,仅需车程4分钟可达,包括Fresh Street Market,Brown's Social House餐厅,星巴克咖啡店,Shopper's Drug Mart用品等在内的店铺和服务设施应有仅有,满足家庭日常生活所需。

社区中心Tong Louie Family YMCA距Eastridge项目仅650米,步行10分钟即达。社区中心提供72000平方英尺各项设施,包括12000平方英尺的健身区域,25米泳道泳池,全尺寸运动馆,日托中心及学前教育课程等等。

Eastridge项目周边公园绿地众多,包括Birdies & Buckets Family高尔夫球场、Goldstone Park等在内步行可达的公园之外,Serpentine湿地公园、Northview高尔夫球场、Guildford高尔夫球场、Morgan Creek高尔夫球场等也都在10分钟车程范围内。

Eastridge项目所在地段对应Sullivan小学及Sullivan Heights中学,均仅需4分钟车程可达。同时由于靠近南素里和白石,有众多优异私立学校,由此前往著名的私立学校Southridge School、Cloverdale Catholic、Diamond School等距离该项目均仅需十几分钟车程。



挂牌概要
|
项目 |
Eastridge |
|
地址 |
15-5528 148 Street, Surrey |
|
户型 |
3卧2.5卫+Den+Rec |
|
室内面积 |
2223 平方英尺 |
|
开价 |
$915,000 |
|
年份 |
2020 |
|
物业费 |
$306.79 |
|
车位 |
2 |
|
推荐理由 |
1. 所在地段紧邻购物商圈,设施齐全,生活便利,周边自然环境秀美; 2. 室内面积超过2000尺面积,享9-12尺挑高,提供通透大气生活体验; 3. 室内设计实用且功能强大,主层即享完整生活机能,无需频繁上下楼梯; 4. 底层带有开阔娱乐休闲空间,两间客卧与主卧相隔,保证隐私互不打扰。 |
|
交通贴士 |
距离素里市中心约15分钟车程。 |
![]() 优先购买 位于素里Panorama Ridge社区的牧场风格联排项目Eastridge仅剩最后一套双拼单位。即刻扫码添加优利超级客服,了解更多信息! ![]() |
|

优利原创文章;转载或广告内容合作请联系优利微信客服 (wechat: youliveca);违规转载法律必究。
免责声明:资料由开发商提供,一切信息以最终发售为准,文章仅供参考。
感谢阅读 精彩继续
近期热点

联排楼花 | Crofton
兰里Willoughby Heights社区

公寓楼花 | Otto
高贵林Coquitlam West社区
点击“阅读原文”直达【优利搜房】





