


1
壹
对于许多人来说,拥有一套复式公寓是一大生活理想。复式公寓内客厅享有双层层高,空间开阔,采光与景观极佳。而在大温市场中,复式公寓着实罕见。

今天优利专栏【户型赏析】为您带来本拿比全新交房高层住宅项目Kings Crossing 3的2房+2卫+Flex顶层复式公寓。
2
贰

Kings Crossing 3
2房2卫1Flex
$1,599,900
地址
2902-7303 Noble Lane, Burnaby
交通
前往Metrotown约7-10分钟车程
年代
2019
室内面积
1393 平方英尺 ≈ 129 平方米
室外面积
1910 平方英尺 ≈ 177 平方米
朝向
西北东
该套单位室内面积为1393平方英尺(约129平方米),室外面积达1910平方英尺(约177平方米),带有2间卧室、2个全卫、1个Flex,并带有2个车位。该项目比邻Kingsway街和Edmonds街交汇处附近的Highgate社区,是本拿比近年来发展快速的又一新兴社区。

入口采用经典的走廊式玄关设计,进门后立刻会被双层挑高的客厅及落地窗所引入的户外景观所吸引。大门边的大尺寸衣帽间收纳空间充足,方便存放外套及鞋包等物品。同时在门口旁的洗手间方便出入时整理妆容。


CresseyKitchen™厨房是开发商Cressey的特色招牌,每个由其开发的居住项目均带有该品牌厨房。该套单位的厨房特别将42寸Jenn-Air一体式冰箱、食品柜Pantry、嵌入式烤箱及微波炉并排设置。无论是食物的拿取存放、或使用烤箱或微波炉进行烹饪,动线明确。


厨房内灶台与岛台平行,岛台内嵌入了一体式洗碗机及红酒柜。大型不锈钢单水槽可轻松洗涤各尺寸锅具及烤盘。天然气明火灶台所在台面及上层橱柜没有像常见户型单位被厨房电器所占据空间,可以全部用来存放烹饪相关用品及用具。


岛台位于该套单位的中心位置,烹饪美味佳肴的同时,也可以享受窗外的雪山美景。客厅享有双层挑高,其开阔的空间感与采光无可比拟。电视墙巧妙利用了扶梯所在墙面,楼梯间的圆形窗户极具设计感。客厅面积可观,可摆放大型转角沙发。



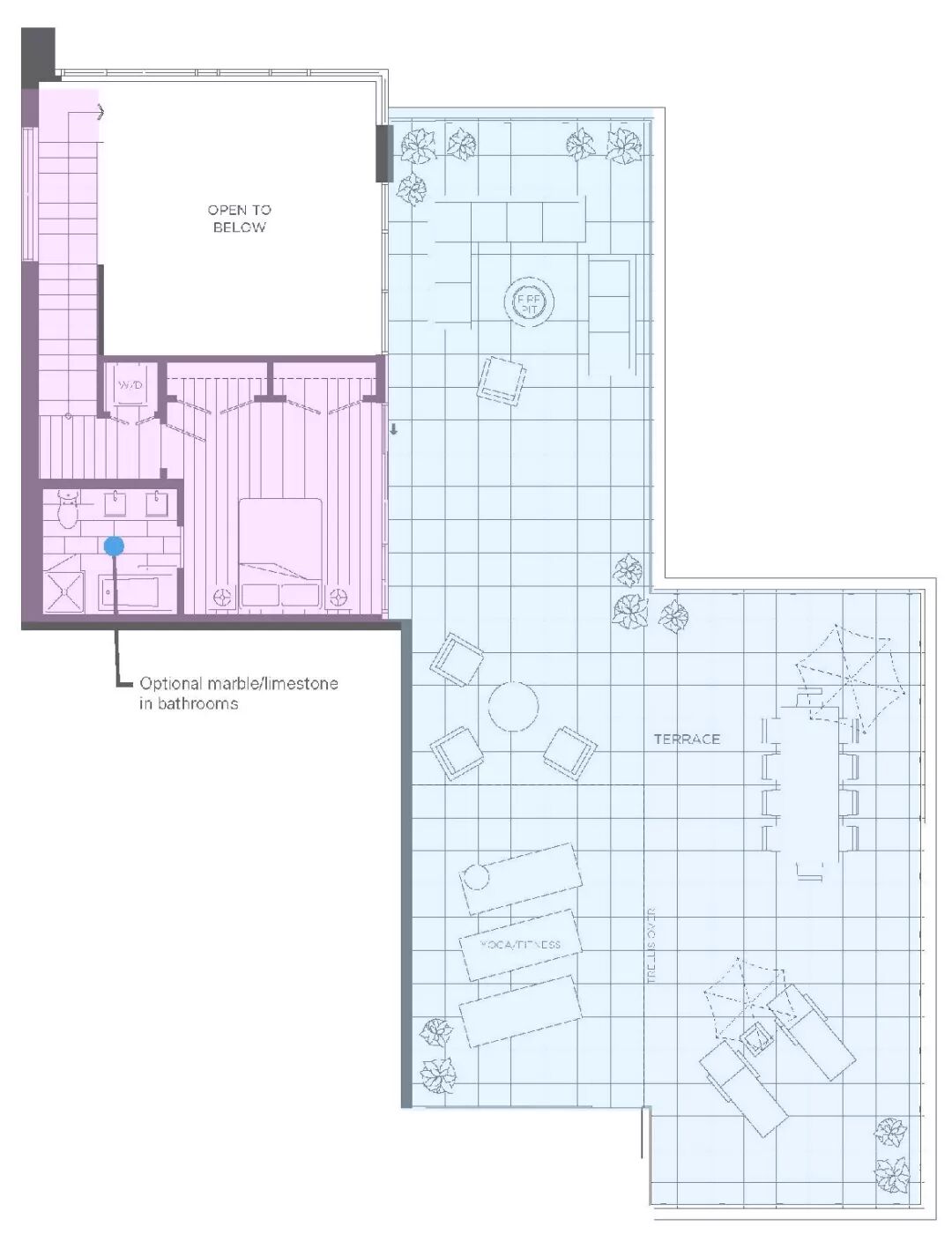
与其他公寓内餐厅客厅相连或合二为一不同,该套单位餐厅位置单独且明确,可放下8人圆桌,同时还可摆放餐边柜以展示收藏的餐具。餐厅旁的落地窗引入了东北向的景观,就餐时不仅可享面前佳肴,同时还有窗外的美景。餐厅内推拉门可前往露台,该处配有天然气烧烤炉。露台面积可观,可放下户外长桌,无论是天气晴好想在户外就餐或邀请亲朋好友相聚,都是极佳的场所。
客厅与餐厅过渡区有一个带有推拉门及落地窗的Flex可作为书房使用,Flex内也可以直接前往露台。

除了生活区域之外,该层还有一个面积可观的客卧,可摆放双人床垫及双床头柜。衣橱内配有搁板,可轻松收纳衣物。客卧内也有推拉门可直接前往露台。同时主卧及客卧分两层设置,可最大程度保证彼此隐私,互不干扰。



广告


复式公寓的一大特点就是将生活区域与休息区域分隔。该套单位的二层就是主卧及附带的超大露台。主卧内带有两个衣橱,可方便男女主人分别收纳各自衣物而不会混在一起。主卧浴室带有地热、双水池、无缝淋浴间及浴缸,设施极其完备。

位于二层的超大露台可谓该套户型的另一亮点。可摆放围绕在篝火旁的转角沙发,与家人在此赏夕阳话家常;清晨则可以迎着朝阳做户外瑜伽,或享用新鲜冲泡的咖啡;或是摆放躺椅在夏日享受私人领域内的日光浴。如果喜欢园艺,那宽敞的露台也提供了可种植花草的充足空间。

3
叁

Kings Crossing是由著名开发商Cressey在本拿比Highgate地区打造的多用途混合小区,由三栋28-36层水泥公寓组成,提供1-3房公寓。从项目前往Metrotown中心商圈仅需7-10分钟车程。

▲ Edmonds社区中心 | 图源网络
项目附近3分钟车程内可到达附近华人超市、Save-on-foods、Shoppers、Rona建材家居超市以及各大银行,亚洲美食和西式餐点也同样近在咫尺。除此之外,造型新颖、功能齐全的社区中心和图书馆也同样在Kings Crossing周围步行5分钟的距离。Emdonds社区中心内有专用健身器材、休闲室内泳池和儿童娱乐区,并为全年龄段提供多种服务项目。

▲ 本拿比公共图书馆 | 图源网络
本拿比公共图书馆(又名Tommy Douglas图书馆)距离项目只有350米步行距离,图书馆提供Wi-Fi无线上网服务,定期由图书管理员进行基础计算机使用辅导。


Kings Crossing项目的业主会所设施齐全,包括屋顶花园、室内球场、健身中心、休闲Lounge等。项目内三幢楼内均配有礼宾服务。

广告


项目概要
|
名称 |
Kings Crossing 3 |
|
地址 |
2902-7303 Noble Lane, Burnaby |
|
户型 |
2房2卫+flex复式公寓 |
|
面积 |
室内1393平方英尺 室外1910平方英尺 |
|
价格 |
$1,599,900 |
|
开发商 |
Cressey |
|
推荐理由 |
1. 由大牌开发商打造全新现房,无需等待,即刻入住,带有两个车位; 2. 罕见顶层复式公寓,采光及景观绝佳,双露台总面积近2000平方尺,可充分享受户外生活; 3. 超高品质Cressey厨房,带有42寸一体式冰箱,收纳空间惊人; 4. 所在区域前往Metrotown仅需10分钟车程。 |
|
交通贴士 |
距Edmonds天车站约1.2公里 |
![]() 优先购买 全新交付的Kings Crossing 3罕见顶层复式公寓先已在售,独享270度绝美景观,即刻扫码添加优利超级客服,了解更多信息! ![]() |
|

优利原创文章;转载或广告内容合作请联系优利微信客服 (wechat: youliveca);违规转载法律必究。
免责声明:资料由开发商提供,一切信息以最终发售为准。文章仅供参考,不作为投资建议。
感谢阅读 精彩继续
近期热点

你问我答 | 最近楼市反弹行情初显,
有什么值得关注的新盘项目吗?
优利你好,感觉最近市场回暖,我们一直在关注新楼盘市场,请问你们有什么推荐吗? 点击阅读>>

每尺单价仅$400+,
即刻入住白石南素里商圈旁联排别墅
南素里及白石地区,向来是华人置业的热门区域。这里背山面海,气候宜人。本期优利小编为您介绍位于南素里的联排别墅South Village现房尾盘。 点击阅读>>
点击“阅读原文”直达【优利搜房】





